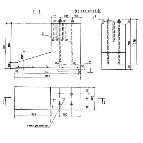
Ф

Чертеж изделия:
Характеристики изделия:
ПараметрЗначение
длина1100 мм
ширина400 мм
высота800 мм
вес530 кг
серияТП 320-55

Ф Фундаменты под ограждения. Малые архитектурные формы и элементы благоустройства улиц, дорог, площадей по серии ТП 320-55.