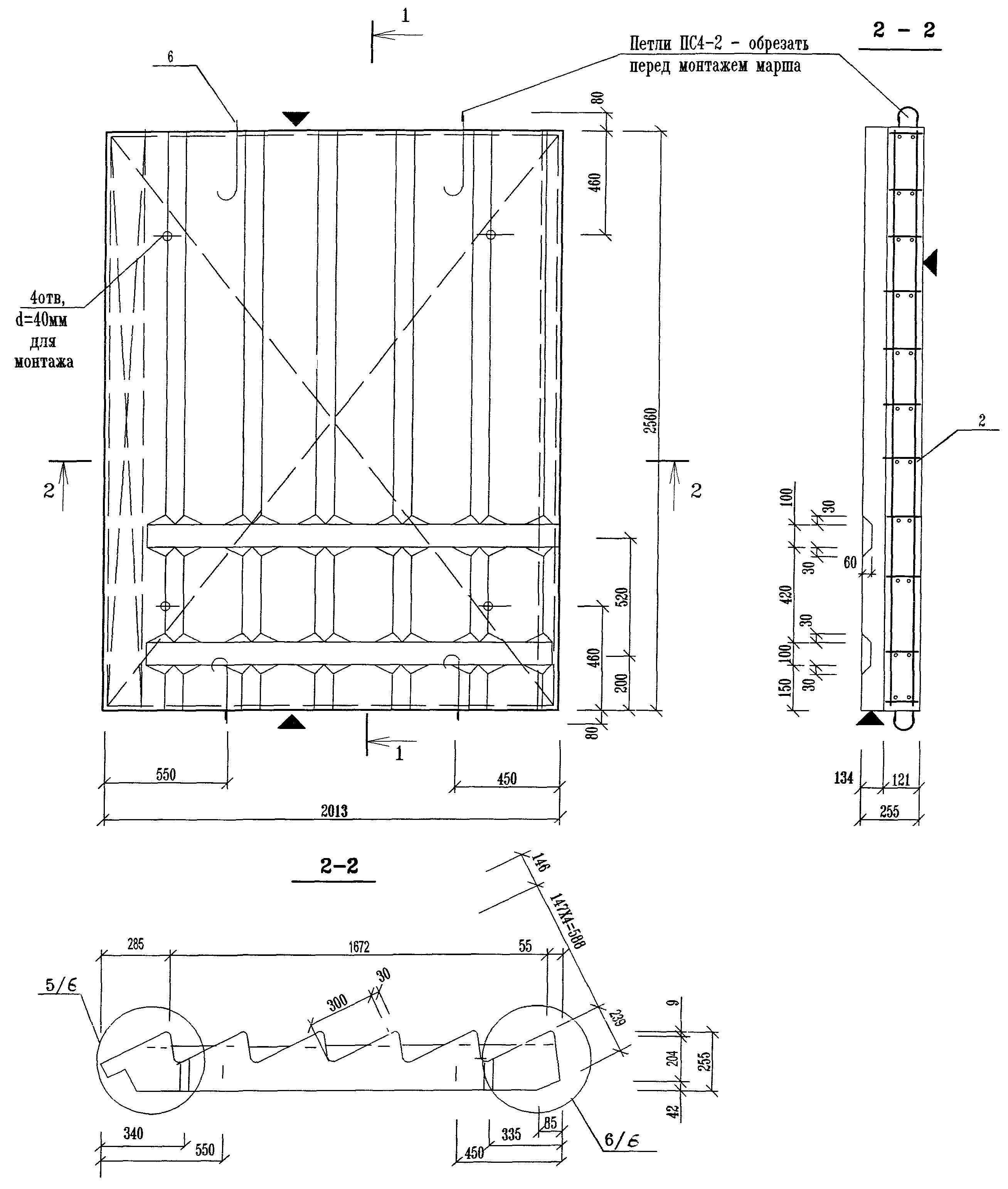
ЛМ 3
Характеристики изделия:
| Параметр | Значение |
|---|---|
| Длина L | 2013 мм |
| Ширина В | 2560 мм |
| Высота Н | 255 мм |
| Вес | 2275 кг |
| Серия | ИЖ 4.2-1 |
| Норма погрузки на машину (20тн) | 8 шт |
| Вагонная норма погрузки | - |
Цена:
Рассчитать стоимостьЛестничный марш ЛМ 3 представленные в серии ИЖ 4.2-1 изготовлены без фризовых ступеней и с гладкой поверхностью бетона. Используются марши при строительстве лестниц в жилых зданиях с высотой 3 метра.
