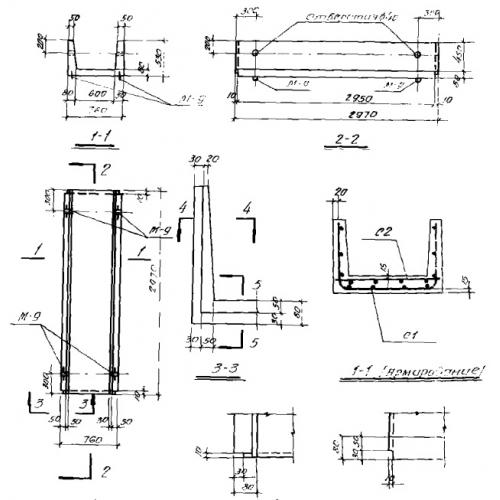
Л 2 лотки

Чертеж изделия:
Характеристики изделия:
ПараметрЗначение
длина2970 мм
ширина760 мм
высота530 мм
масса880 кг
нормативный документСерия ИС 01-04

Л 2    Железобетонные лотки  по Серии ИС 01-04.