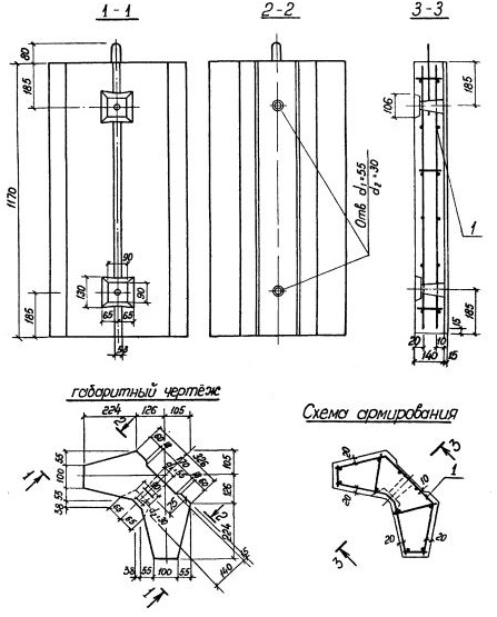
СБД 3.3

Чертеж изделия:
Характеристики изделия:
ПараметрЗначение
Длина1170 мм
Ширина455 мм
Высота455 мм
Масса300 кг
Нормативный документСерия 3.702.1-4

СБД 3.3  Силосный блок доборный по Серии 3.702.1-4.