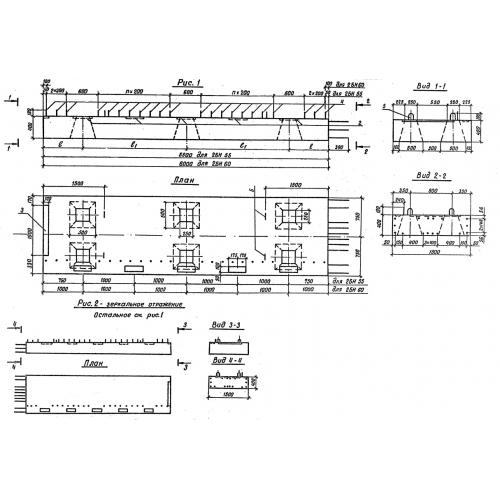
2БН 55

Чертеж изделия:
Характеристики изделия:
ПараметрЗначение
длина5500 мм
ширина1500 мм
высота400 мм
вес7330 кг
серия3.503.1-79

2БН 55 - блоки насадок.   Насадки на сваи по серии 3.503.1-79.