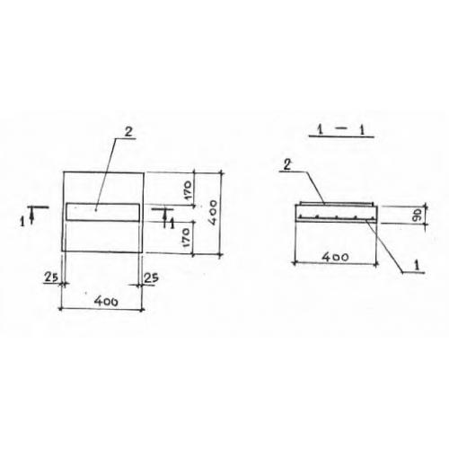
ОП 3

Чертеж изделия:
Характеристики изделия:
ПараметрЗначение
длина400 мм
ширина400 мм
высота90 мм
вес40 кг
серия3.006-2

ОП 3 Опорные подушки по серии 3.006-2.