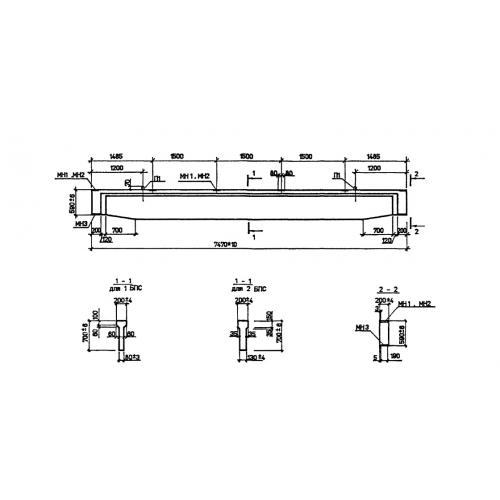
БПС 7.5
Характеристики изделия:
| Параметр | Значение |
|---|---|
| длина | 7470 мм |
| ширина | 200 мм |
| высота | 700 мм |
| вес | 1400 кг |
| серия | 1.849.1-5.93 |
Цена:
Рассчитать стоимостьБСП 7.5 Балки для чердачных перекрытий сельскохозяйственных зданий по серии 1.849.1-5.93.
| Параметр | Значение |
|---|---|
| длина | 7470 мм |
| ширина | 200 мм |
| высота | 700 мм |
| вес | 1400 кг |
| серия | 1.849.1-5.93 |
БСП 7.5 Балки для чердачных перекрытий сельскохозяйственных зданий по серии 1.849.1-5.93.
