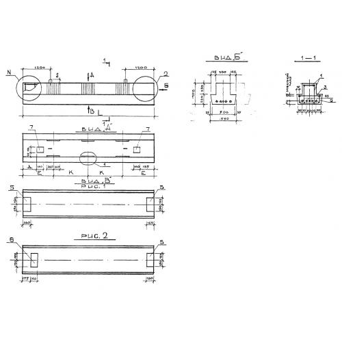
РДС 4.72

Чертеж изделия:
Характеристики изделия:
ПараметрЗначение
длина7160 мм
ширина550 мм
высота450 мм
вес3300 кг
серия1.220.1-2

РДС 4.72 Ригели покрытий по серии 1.220.1-2.