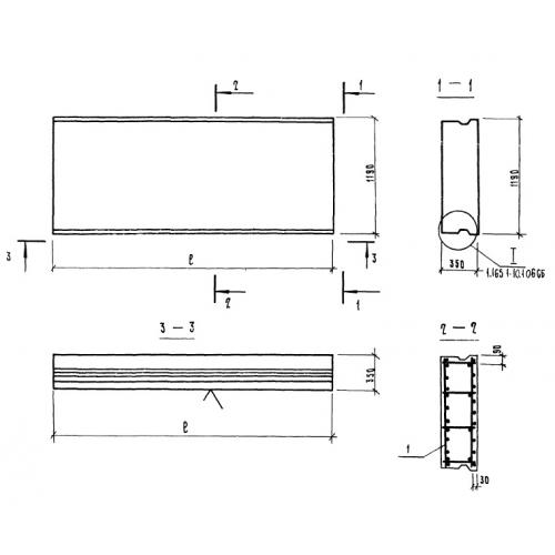
П 57.12.35

Чертеж изделия:
Характеристики изделия:
ПараметрЗначение
длина5670 мм
ширина1190 мм
высота350 мм
вес1720 кг
серия1.165.1-10

П 57.12.35 Панели покрытия по серии 1.165.1-10.