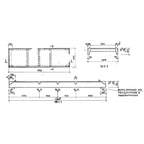
ПР 48-15

Чертеж изделия:
Характеристики изделия:
ПараметрЗначение
длина4780 мм
ширина1490 мм
высота300 мм
вес1415 кг
серия1.165-1

ПР 48-15 Панели ребристые по серии 1.165-1.