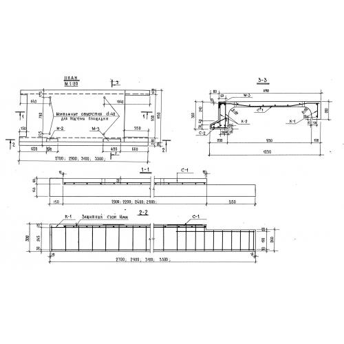
ЛП 260

Чертеж изделия:
Характеристики изделия:
ПараметрЗначение
длина2900 мм
ширина1150 мм
высота300 мм
вес878 кг
серия1.150 КР-1

ЛП 260 Лестничные площадки по серии 1.150 КР-1.