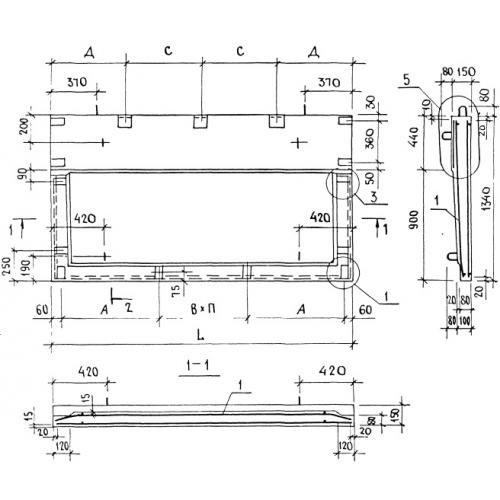
ПБК 36.13 плиты балконные
Характеристики изделия:
| Параметр | Значение |
|---|---|
| длина | 3590 мм |
| ширина | 1340 мм |
| высота | 150 мм |
| масса | 1425 кг |
| нормативный документ | Серия 1.137.1-9 |
Цена:
Рассчитать стоимостьПБК 36.13 Плиты балконные консольные Серия 1.137.1-9.
| Параметр | Значение |
|---|---|
| длина | 3590 мм |
| ширина | 1340 мм |
| высота | 150 мм |
| масса | 1425 кг |
| нормативный документ | Серия 1.137.1-9 |
ПБК 36.13 Плиты балконные консольные Серия 1.137.1-9.
