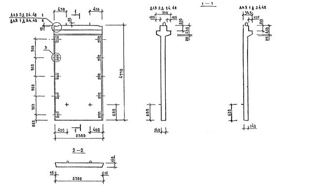
2Д 24.48 диафрагмы жесткости

Чертеж изделия:
Характеристики изделия:
ПараметрЗначение
длина2380 мм
ширина550 мм
высота4770 мм
масса4780 кг
нормативный документСерия 1.020-1/87

2Д 24.48   Диафрагмы жесткости с двумя полками Серия 1.020-1/87.