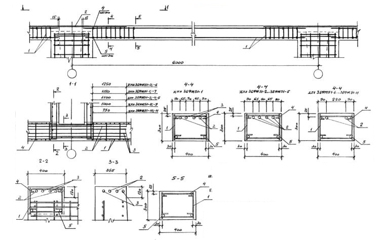
3БФМ 51 балки фундаментные

Чертеж изделия:
Характеристики изделия:
ПараметрЗначение
длина6000 мм
ширина400 мм
высота300 мм
масса1775 кг
нормативный документСерия 1.015.1-1.95

3БФМ 51  Балки фундаментные монолитные Серия 1.015.1-1.95.