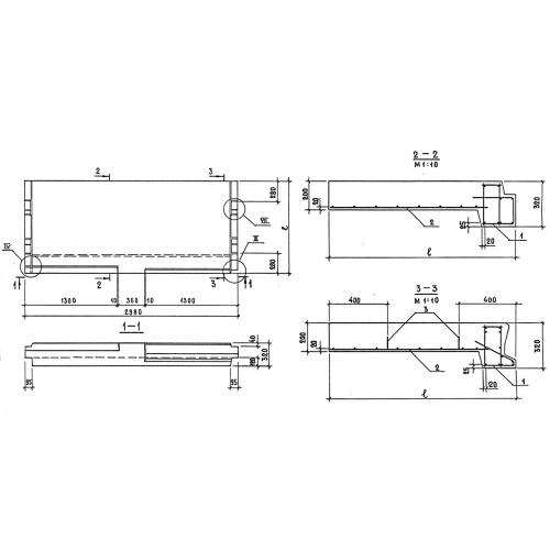
1ЛП 30.16 лестничные площадки плоские

Чертеж изделия:
Характеристики изделия:
ПараметрЗначение
длина2980 мм
ширина1600 мм
высота320 мм
масса2460 кг
нормативный документГОСТ 9818-85

1ЛП 30.16  Лестничные площадки плоские ГОСТ 9818-85.